Data: 2021
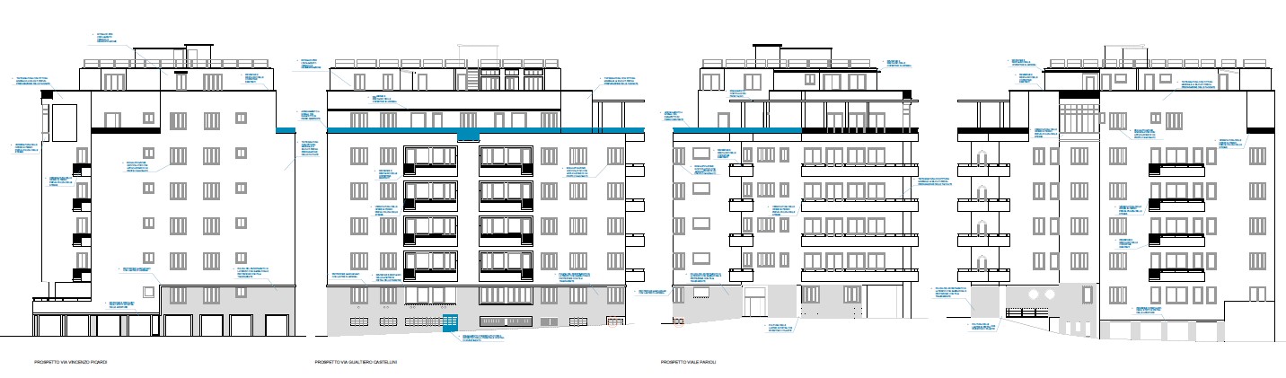
Luogo: Viale Parioli 54, Roma (RM)
Oggetto: Progettazione Esecutiva, Direzioni Lavori e Coordinamento per la sicurezza per la riqualificazione del prospetto con Bonus Facciate
Committente: Privato
Importo: 300.000,00 €
Stato Attuale: Eseguito





